- Accueil
- Vente
- Seine maritime
- Gueutteville les gres
- Maison idéal secondaire proche St Valery en caux et Veules les roses (76)
Référence : 1379FR
Calculette
Partager
Maison idéal secondaire proche St Valery en caux et Veules les roses (76)
Description de l'offre
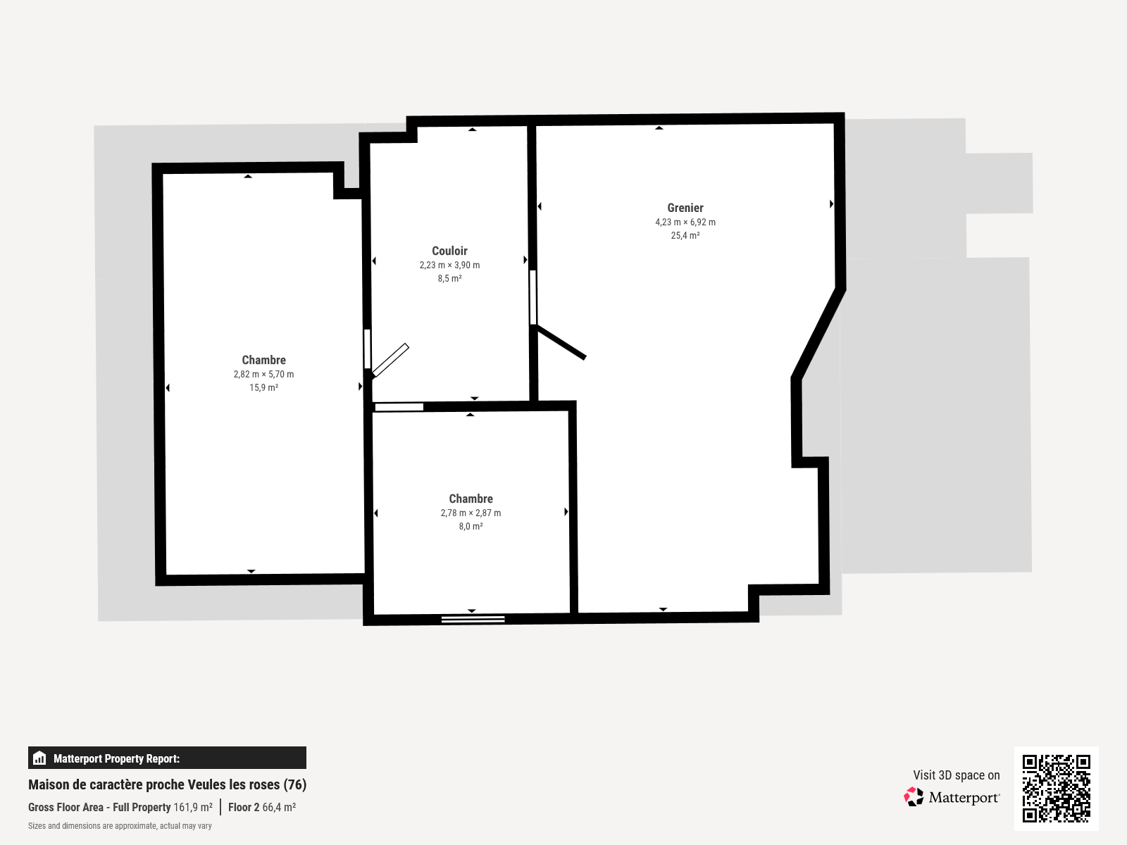
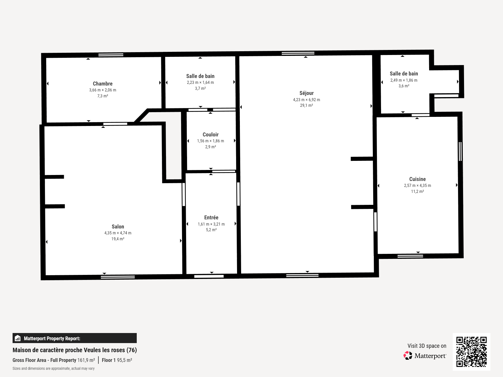
En Normandie, en Seine Maritime (76), agréable maison de caractère ayant gardé certains éléments anciens (parquet, tomettes...) se situant à moins de 10 minutes des plages de Veules les Roses et St Valery en caux. Idéal pour une résidence secondaire, elle vous offre entrée, salon avec cheminée avec poêle à granulés (28m2), salle à manger (20 m2), pièce à usage de chambre, salle d'eau avec wc, cuisine aménagée et équipée récente, wc avec coin buanderie. A l'étage avec son parquet d'origine, palier desservant 2 chambres et grenier à aménager. Garage attenant 1 vl et le tout édifiée sur une parcelle de 1084 m2. Honoraires de 10.000 euros à la charge de l'acquéreur et compris dans le prix soit 180.000 euros net vendeur.
Les informations sur les risques auxquels ce bien est exposé sont disponibles sur le site Géorisques
Descriptif du bien
- Code postal : 76460
- Surface habitable (m²) : 101 m²
- surface terrain : 1 084 m²
- Nombre de chambre(s) : 3
- Nombre de pièces : 6
- Nombre de niveaux : 2
- Nb de salle d'eau : 1
- Cuisine : SEPAREE
- Type de cuisine : EQUIPEE
- Interphone : NON
- Visiophone : NON
- Terrasse : NON
- Nombre de garage : 1
- Nombre de parking : 2
- Exposition : SUD
- Terrain piscinable : OUI
- Terrain arboré : NON
- Copropriété : NON
- plan de sauvegarde : NON
- Prix de vente honoraires TTC inclus : 190 000 €
- Prix de vente honoraires TTC exclus : 180 000 €
- Honoraires TTC à la charge acquéreur : 5,56 %
- Taxe foncière annuelle : 618 €
Montant estimé des dépenses annuelles d'énergie pour un usage standard est compris entre 2 230 € et 3 060 € . Prix moyens des énergies indexés sur les années 2021, 2022 et 2023 (abonnements compris).
La ville de Gueutteville-les-Grès (76460)
Ce bien vous intéresse ?
Partager l'offre
Caux Seine Immobilier
Paluel (76450)
Les informations recueillies sur ce formulaire sont enregistrées dans un fichier informatisé par La Boite Immo agissant comme Sous-traitant du traitement pour la gestion de la clientèle/prospects de l'Agence / du Réseau qui reste Responsable du Traitement de vos Données personnelles.
La base légale du traitement repose sur l'intérêt légitime de l'Agence / du Réseau.
Elles sont conservées jusqu'à demande de suppression et sont destinées à l'Agence / au Réseau.
Conformément à la loi « informatique et libertés », vous disposez des droits d’accès, de rectification, d’effacement, d’opposition, de limitation et de portabilité de vos données. Vous pouvez retirer votre consentement à tout moment en contactant directement l’Agence / Le Réseau.
Consultez le site https://cnil.fr/fr pour plus d’informations sur vos droits.
Si vous estimez, après avoir contacté l'Agence / le Réseau, que vos droits « Informatique et Libertés » ne sont pas respectés, vous pouvez adresser une réclamation à la CNIL.
Nous vous informons de l’existence de la liste d'opposition au démarchage téléphonique « Bloctel », sur laquelle vous pouvez vous inscrire ici : https://www.bloctel.gouv.fr
Dans le cadre de la protection des Données personnelles, nous vous invitons à ne pas inscrire de Données sensibles dans le champ de saisie libre.
Ce site est protégé par reCAPTCHA, les Politiques de Confidentialité et les Conditions d'Utilisation de Google s'appliquent.
