- Accueil
- Vente
- Seine maritime
- Luneray
- A vendre, maison de campagne rénovée avec 3 chambres à 10 km de la mer
Référence : 1341KD
Calculette
Partager
A vendre, maison de campagne rénovée avec 3 chambres à 10 km de la mer
Description de l'offre
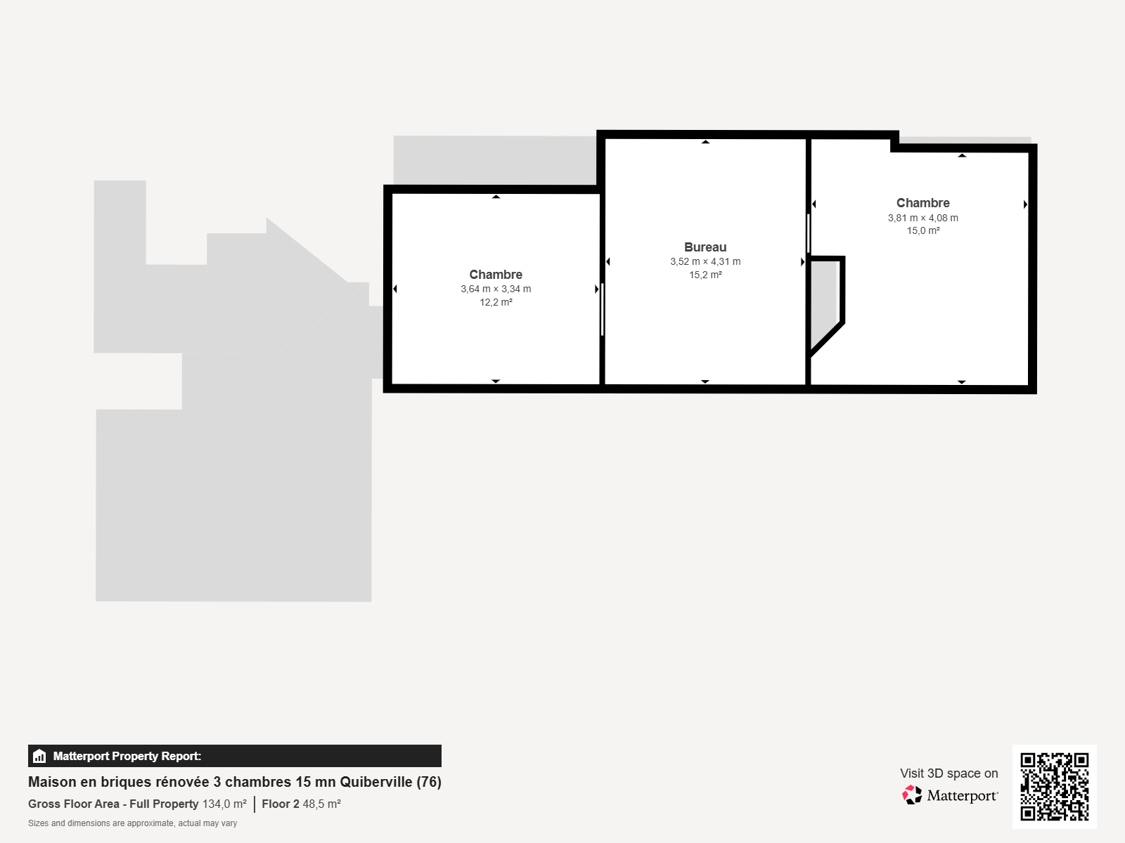
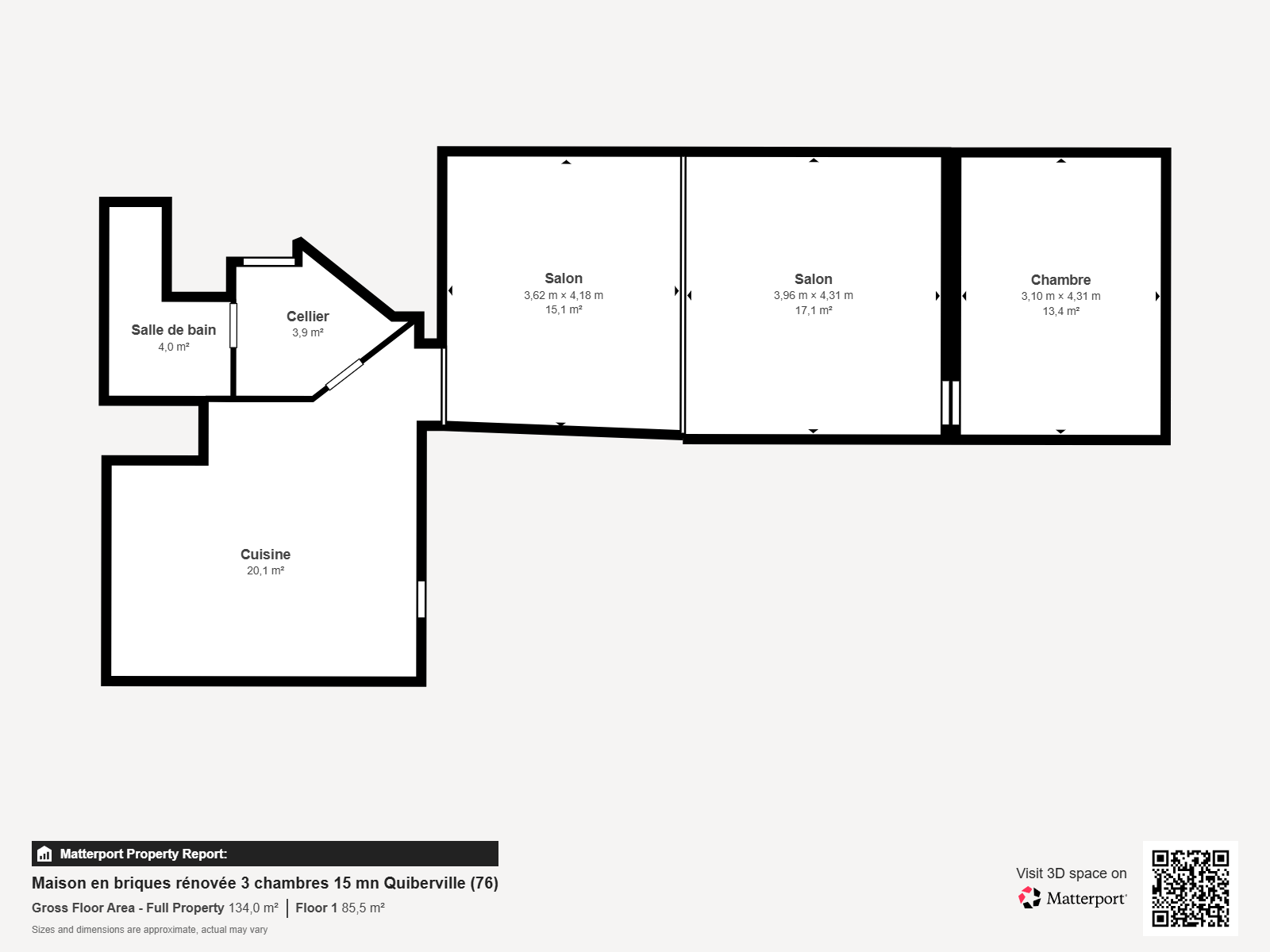
En Normandie, Seine-Maritime (76). À seulement 3,5 km du village tous commerces de Luneray, et à environ 10 km des plages de Quiberville et Sainte-Marguerite Sur mer, laissez vous charmer par cette maison de campagne qui plaira sans aucun doute aux amateurs de calme et de nature ! Nichée dans un écrin de verdure et de végétation exotique et luxuriante, cette maison en briques datant de 1848 a été rénovée avec soin en 2019 et bénéficie d'une extension en ossature bois. De grandes baies vitrées illuminent une cuisine aménagée et équipée ouverte sur une terrasse exposée plein sud, avec un environnement verdoyant. Toujours en rez-de-chaussée, vous avez accès à un espace buanderie, une salle de douche à l'italienne, un WC séparé, un séjour/salon équipé d'un poêle à bois et une chambre. À l'étage, un palier dessert deux belles chambres mansardées qui ont conservé le charme de l'ancien avec leur plancher en bois. À l'extérieur, les 2 800 m² de jardin se voient accueillir un garage avec appentis et un container servant d'abri de jardin. Chauffage par pompe à chaleur révélant de faibles consommations d'énergie, Fenêtres en bois et aluminium, double vitrage, fibre. Assainissement tout-à-l'égout. Honoraires de 12.000€ à la charge de l'acquéreur et compris dans le prix, soit 238.000€ net vendeur.
Descriptif du bien
- Code postal : 76810
- Surface habitable (m²) : 102 m²
- surface terrain : 2 843 m²
- Nombre de chambre(s) : 3
- Nombre de pièces : 5
- Nombre de niveaux : 2
- Vue : Campagne
- Nb de salle de bains : 1
- Cuisine : SEPAREE
- Type de cuisine : EQUIPEE
- Mode de chauffage : Pompe à chaleur
- Type de chauffage : TRAD_TYPE_CHAUFF_AIR_EAU
- Format de chauffage : Individuel
- Terrasse : OUI
- Nombre de garage : 1
- Exposition : SUD
- Année de construction : 1945
- Terrain arboré : OUI
- Copropriété : NON
- Prix de vente honoraires TTC inclus : 250 000 €
- Prix de vente honoraires TTC exclus : 238 000 €
- Honoraires TTC à la charge acquéreur : 5,04 %
- Taxe foncière annuelle : 524 €
Montant estimé des dépenses annuelles d'énergie pour un usage standard est compris entre 1 180 € et 1 660 € . Prix moyens des énergies indexés sur les années 2021, 2022 et 2023 (abonnements compris).
La ville de Luneray (76810)
Ce bien vous intéresse ?
Partager l'offre

Caux Seine Immobilier
Paluel (76450)
Les informations recueillies sur ce formulaire sont enregistrées dans un fichier informatisé par La Boite Immo agissant comme Sous-traitant du traitement pour la gestion de la clientèle/prospects de l'Agence / du Réseau qui reste Responsable du Traitement de vos Données personnelles.
La base légale du traitement repose sur l’intérêt légitime de l'Agence / du Réseau.
Elles sont conservées jusqu'à demande de suppression et sont destinées à l'Agence / au Réseau.
Conformément à la loi « informatique et libertés », vous pouvez exercer votre droit d'accès aux données vous concernant et les faire rectifier en contactant l'Agence / le Réseau.
Si vous estimez, après avoir contacté l'Agence / le Réseau, que vos droits « Informatique et Libertés » ne sont pas respectés, vous pouvez adresser une réclamation à la CNIL.
Nous vous informons de l’existence de la liste d'opposition au démarchage téléphonique « Bloctel », sur laquelle vous pouvez vous inscrire ici : https://www.bloctel.gouv.fr
Dans le cadre de la protection des Données personnelles, nous vous invitons à ne pas inscrire de Données sensibles dans le champ de saisie libre
Ce site est protégé par reCAPTCHA, les Politiques de Confidentialité et les Conditions d'Utilisation de Google s'appliquent.