- Accueil
- Vente
- Seine maritime
- Dieppe
- Maison familiale tout confort Pourville sur mer - Dieppe
Référence : 1376FR
Calculette
Partager
Maison familiale tout confort Pourville sur mer - Dieppe
Description de l'offre
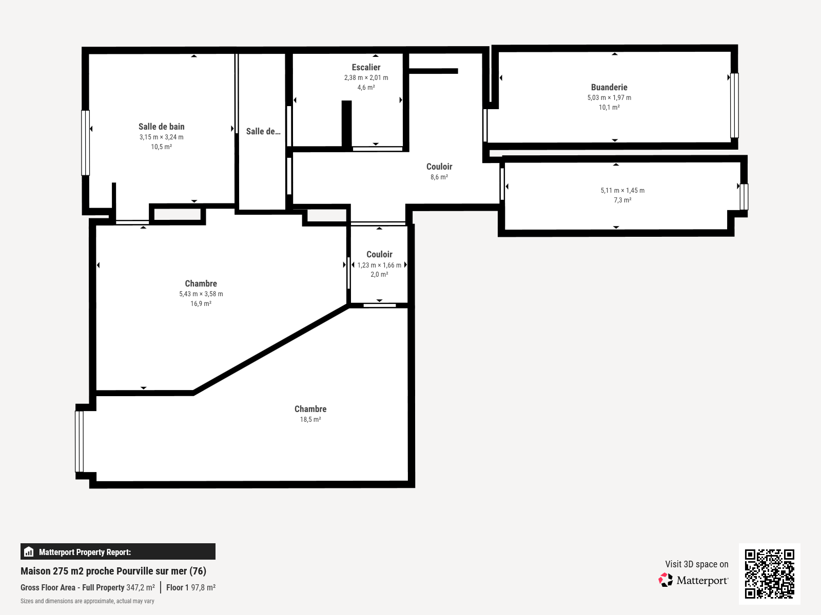
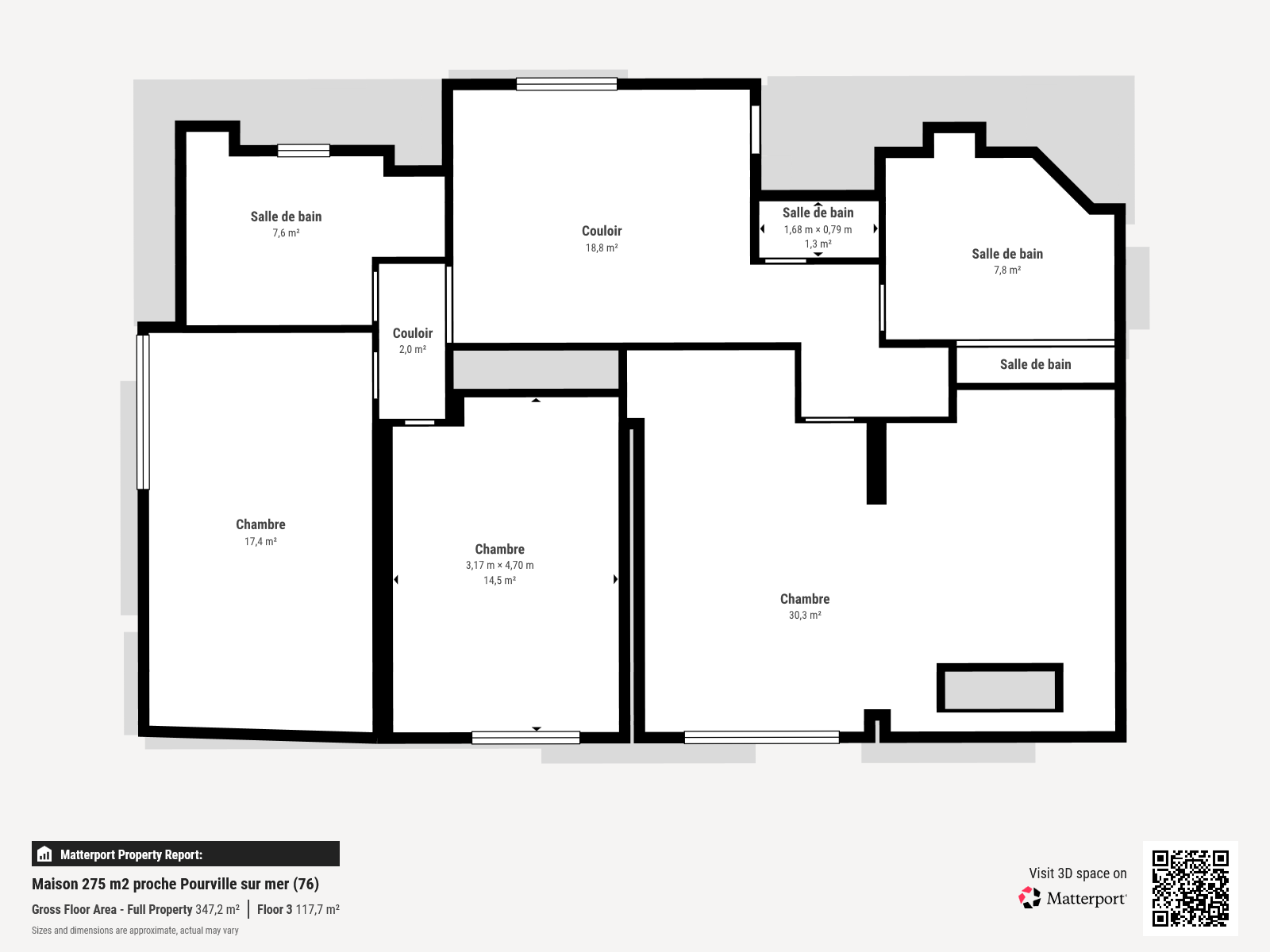
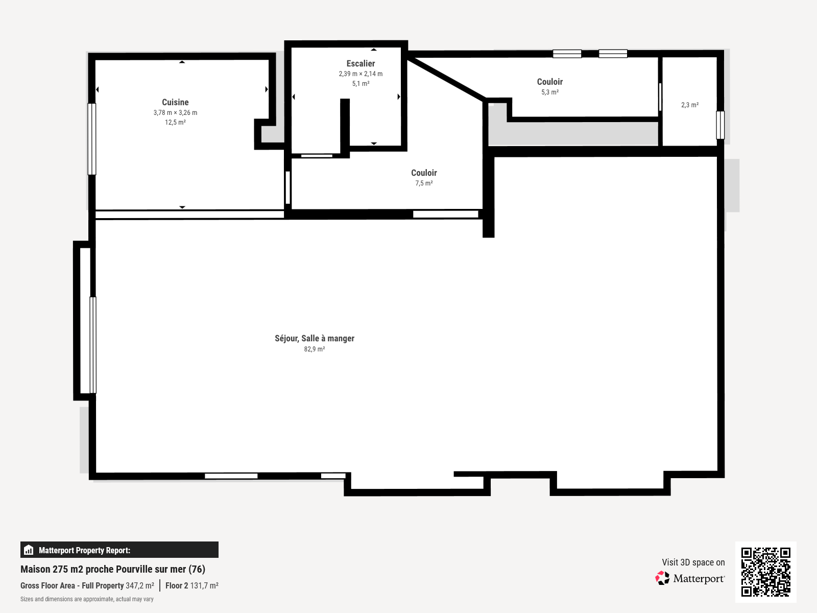
En Normandie, en Seine Maritime (76), en proximité immédiate de la plage de Pourville sur mer, trés belle maison tout confort de prés de 280 m2 habitable édifiée sur parcelle de terrain arboré de 4900 m2 de jardin avec vue sur le Golf de Dieppe. Trés lumineuse et trés fonctionnelle, cette maison à benéficier de travaux récents pour vous assurer un confort optimum. Elle vous offre entrée avec rangements, wc, cuisine aménagée et équipée ( moins de 1 an) ouverte sur séjour décomposé en un salon et salle à manger (pôele à granulés récent) de 80 m2 et donnant sur terrasse extérieure. Au 1er étage grande chambre de plus de 30 m2 (anciennement 2 chambres) avec penderie, salle de bains, wc, 2 autres chambres et salle d'eau. Sous sol aménagé comprenant 2 chambres dont une avec salle d'eau et douche iltalienne, wc, lingerie, cave à vins. Garage avec porte motorisée 1 véhicule et atelier. Honoraires de 33.000 euros à la charge de l'acquéreur et compris dans le prix soit 660.000 euros net vendeur.
Les informations sur les risques auxquels ce bien est exposé sont disponibles sur le site Géorisques
Descriptif du bien
- Code postal : 76200
- Surface habitable (m²) : 279 m²
- surface terrain : 4 915 m²
- Nombre de chambre(s) : 5
- Nombre de pièces : 8
- Nombre de niveaux : 3
- Nb de salle de bains : 1
- Nb de salle d'eau : 2
- Cuisine : AMERICAINE
- Type de cuisine : EQUIPEE
- Mode de chauffage : Gaz
- Type de chauffage : TRAD_TYPE_CHAUFF_CHAUDIERE
- Format de chauffage : Central
- Interphone : NON
- Visiophone : NON
- Terrasse : OUI
- Nombre de garage : 1
- Nombre de parking : 4
- Exposition : SUD
- Année de construction : 1970
- Terrain piscinable : OUI
- Terrain arboré : OUI
- Copropriété : OUI
- nombre de lots : 22
- plan de sauvegarde : NON
- Prix de vente honoraires TTC inclus : 693 000 €
- Prix de vente honoraires TTC exclus : 660 000 €
- Honoraires TTC à la charge acquéreur : 5 %
- Taxe foncière annuelle : 5 200 €
Montant estimé des dépenses annuelles d'énergie de ce logement pour un usage standard est compris entre 4 718 € et 6 384 € . 2023 étant l'année de référence des prix de l'énergie utilisés pour établir cette estimation.
La ville de Dieppe (76200)
Ce bien vous intéresse ?
Partager l'offre
Caux Seine Immobilier
Paluel (76450)
Les informations recueillies sur ce formulaire sont enregistrées dans un fichier informatisé par La Boite Immo agissant comme Sous-traitant du traitement pour la gestion de la clientèle/prospects de l'Agence / du Réseau qui reste Responsable du Traitement de vos Données personnelles.
La base légale du traitement repose sur l'intérêt légitime de l'Agence / du Réseau.
Elles sont conservées jusqu'à demande de suppression et sont destinées à l'Agence / au Réseau.
Conformément à la loi « informatique et libertés », vous disposez des droits d’accès, de rectification, d’effacement, d’opposition, de limitation et de portabilité de vos données. Vous pouvez retirer votre consentement à tout moment en contactant directement l’Agence / Le Réseau.
Consultez le site https://cnil.fr/fr pour plus d’informations sur vos droits.
Si vous estimez, après avoir contacté l'Agence / le Réseau, que vos droits « Informatique et Libertés » ne sont pas respectés, vous pouvez adresser une réclamation à la CNIL.
Nous vous informons de l’existence de la liste d'opposition au démarchage téléphonique « Bloctel », sur laquelle vous pouvez vous inscrire ici : https://www.bloctel.gouv.fr
Dans le cadre de la protection des Données personnelles, nous vous invitons à ne pas inscrire de Données sensibles dans le champ de saisie libre.
Ce site est protégé par reCAPTCHA, les Politiques de Confidentialité et les Conditions d'Utilisation de Google s'appliquent.
